Area Multifunzionale con Capannone Industriale
Imer
Superficie:
1640

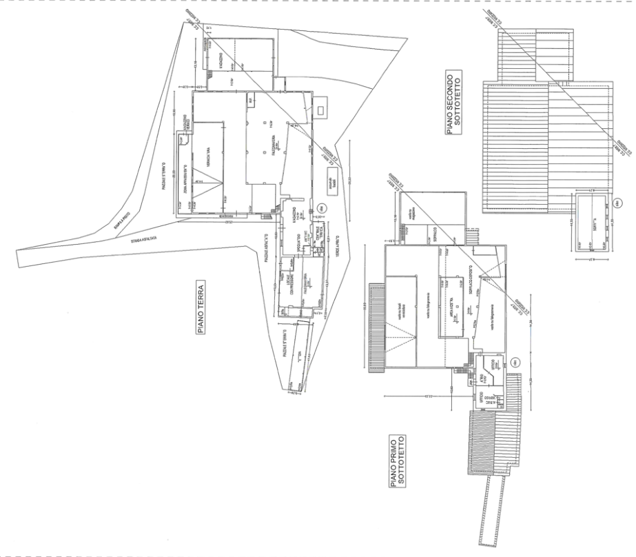
Compendio produttivo industriale, censito in categoria d'uso AREA MULTIFUNZIONALE di interesse locale, per cui sono previsti la produzione, lo stoccaggio e la commercializzazione di prodotti e servizi.

All'interno dell'area, di 3545mq, è presente un capannone (ex falegnameria industriale), disposto in un corpo centrale di 1200mq in pianta, di cui parte è soppalcata per area mostra ed uffici, oltre ad un blocco comunicante e con accesso autonomo di 220mq.

Informazioni Generali

Superficie: 1640
Superficie Totale del Lotto: 3700

Località

Paese: Italia
Città: Imer
CAP: 38050

Planimetrie

Mappa

Altri immobili in evidenza